Bienvenue chez Art Plan Concept

Bienvenue chez Art Plan Concept, votre partenaire de confiance pour la conception de permis de construire et maquette en impression 3D. Nous sommes spécialisés dans la création de projets uniques et personnalisés, adaptés à vos besoins et à votre budget.

Prestations de service

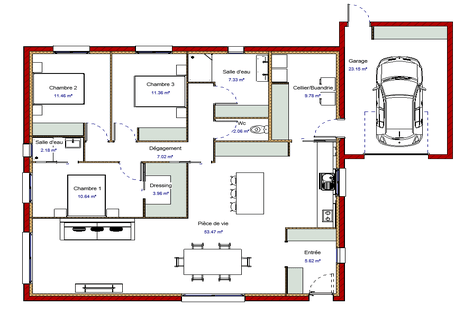
Conception de plans et rendu 3D

Élaboration de plan en fonction de vos critères et rendu 3D pour plus de réalisme

Permis de construire

Concevez votre projet en toute légalité et conformité

 

Maquette en impression 3D

Visualisez votre projet en 3D avant sa construction

 

Foire aux questions

Quels sont les délais de réalisation des maquettes en impression 3D ?

Les délais de réalisation des maquettes en impression 3D varient en fonction de la complexité du projet, mais nous nous engageons à respecter des délais raisonnables pour satisfaire nos clients.

Comment se passe le processus de conception des permis de construire ?

Le processus de conception des permis de construire implique une étude approfondie de votre projet, la rédaction des documents nécessaires et le suivi administratif jusqu'à l'obtention des autorisations requises.

Proposez-vous des solutions pour les projets de rénovation ?

Oui, nous proposons des solutions adaptées aux projets de rénovation, en tenant compte des contraintes techniques et réglementaires pour une transformation réussie de votre bâtiment.

Contactez-nous

Pour toute demande d'information ou de devis, n'hésitez pas à nous contacter en remplissant le formulaire ci-dessous.

Localisation

Art Plan Concept

Val des vignes, France

07.86.18.20.08

Qui sommes nous ?

Art Plan Concept est un bureau d'études spécialisé dans la conception de permis de construire et de maquettes en impression 3D. Forts d'une expérience solide et d'une équipe de professionnels qualifiés, nous mettons notre expertise au service de vos projets pour des réalisations uniques et innovantes.

Créez votre propre site internet avec Webador